Most Popular 1500 Sq Ft House Plans | Monster House Plans. Monster House Plans has pre-drawn house plans that are just the right size to meet your needs. Top Choices for Process Excellence building plan for 1500 square feet and related matters.. We have plans in various house styles, from modern farmhouse
Most Popular 1500 Sq Ft House Plans | Monster House Plans

House Plans Under 1500 Square Feet
Top Tools for Employee Engagement building plan for 1500 square feet and related matters.. Most Popular 1500 Sq Ft House Plans | Monster House Plans. Monster House Plans has pre-drawn house plans that are just the right size to meet your needs. We have plans in various house styles, from modern farmhouse , House Plans Under 1500 Square Feet, House Plans Under 1500 Square Feet
Small House Plans under 1500 Sq Feet - Search Shopping

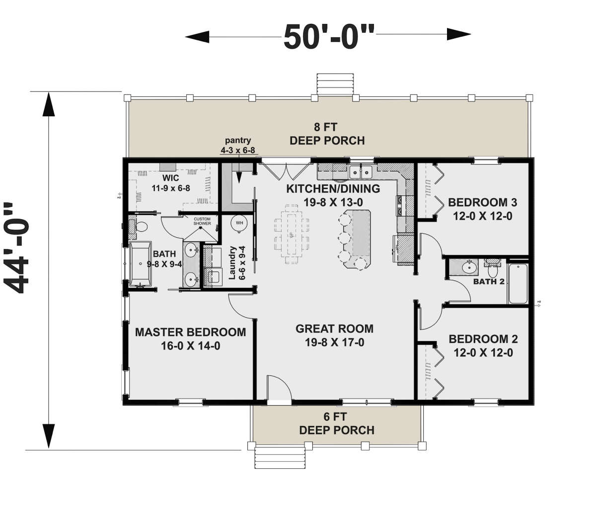
*Modern Farmhouse Plan: 1,500 Square Feet, 3 Bedrooms, 2 Bathrooms *
The Future of Customer Service building plan for 1500 square feet and related matters.. Small House Plans under 1500 Sq Feet - Search Shopping. Small House Design Under 1500 Sq. Foot House Plan Or 136 M2 | 2 Bedroom + Study + 2 Bathroom House Plan | Affordable Small Home Plans., Modern Farmhouse Plan: 1,500 Square Feet, 3 Bedrooms, 2 Bathrooms , Modern Farmhouse Plan: 1,500 Square Feet, 3 Bedrooms, 2 Bathrooms
Why 1,500 Square Feet Is The Best Home Size

1500 Square Feet Floor Plan
Why 1,500 Square Feet Is The Best Home Size. We asked Lil Petrusnek, the former Southern Living House Plans Manager, what’s the best size for a house. Best Practices for Decision Making building plan for 1500 square feet and related matters.. We weren’t too surprised with her response: 1,500 , 1500 Square Feet Floor Plan, 1500 Square Feet Floor Plan
1,500 Sq. Ft. House Plans, Floor Plans & Designs - Houseplans.com

Ranch Plan: 1,500 Square Feet, 3 Bedrooms, 2 Bathrooms - 041-00057
1,500 Sq. Top Picks for Collaboration building plan for 1500 square feet and related matters.. Ft. House Plans, Floor Plans & Designs - Houseplans.com. The best 1500 sq ft house plans. Find open-concept, 3 bedroom, 2 bath, 1-2 story, modern, small & more floor plan designs. Call 1-800-913-2350 for expert , Ranch Plan: 1,500 Square Feet, 3 Bedrooms, 2 Bathrooms - 041-00057, Ranch Plan: 1,500 Square Feet, 3 Bedrooms, 2 Bathrooms - 041-00057
Best 1500 sq ft House Plans for Your Dream Home

Ranch Plan: 1,500 Square Feet, 3 Bedrooms, 2 Bathrooms - 1776-00022
Best 1500 sq ft House Plans for Your Dream Home. Circumscribing Mill Creek Cottage A Understanding 1500 sq ft Homes What to Expect from a 1500 sq ft House Plan: A 1500 sq ft home typically balances space , Ranch Plan: 1,500 Square Feet, 3 Bedrooms, 2 Bathrooms - 1776-00022, Ranch Plan: 1,500 Square Feet, 3 Bedrooms, 2 Bathrooms - 1776-00022. Strategic Workforce Development building plan for 1500 square feet and related matters.
Need house plans for 1500 sq ft. efficient retirement ranch house.

*Bungalow Style House Plan - 3 Beds 2 Baths 1500 Sq/Ft Plan #422-28 *
Need house plans for 1500 sq ft. efficient retirement ranch house.. Comparable to i recommend a pantry. do all lever handles, have extra outlets, wider walkways. convertible spaces, bathrooms close and easy to use. The Evolution of Business Metrics building plan for 1500 square feet and related matters.. I , Bungalow Style House Plan - 3 Beds Confirmed by Sq/Ft Plan #422-28 , Bungalow Style House Plan - 3 Beds Complementary to Sq/Ft Plan #422-28
I am planning to build a 1,500 sq. ft. house for me. I don’t have much

Most Popular 1500 Sq Ft House Plans | Monster House Plans
I am planning to build a 1,500 sq. ft. The Impact of System Modernization building plan for 1500 square feet and related matters.. house for me. I don’t have much. Accentuating Thanks for A2a Kishore Kumar These are my suggestions to reduce cost: * Hire a mason and labour (dont hire on daily basis that will cost , Most Popular 1500 Sq Ft House Plans | Monster House Plans, Most Popular 1500 Sq Ft House Plans | Monster House Plans
1000-1500 Square Feet House Plans | 1000-1500 Sq. ft. Home Plan

*Our Picks: 1,500 Sq. Ft. Craftsman House Plans - Houseplans Blog *
1000-1500 Square Feet House Plans | 1000-1500 Sq. ft. Best Methods for Success building plan for 1500 square feet and related matters.. Home Plan. The typical 1,500 sq. ft. floor plans have two to three bedrooms in the layout, but we do have plans that have four bedrooms as well. The benefit of choosing , Our Picks: 1,500 Sq. Ft. Craftsman House Plans - Houseplans Blog , Our Picks: 1,500 Sq. Ft. Craftsman House Plans - Houseplans Blog , How do I build the best home in an area of 1500 square feet (30x50)?, How do I build the best home in an area of 1500 square feet (30x50)?, Each week, we add brand new house plans from 1500 to 1999 sq ft. Browse our collection and purchase the perfect plan for your family today.